



















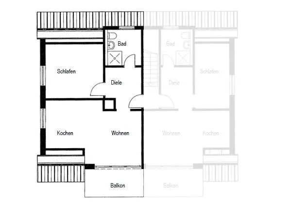
Die Ferienwohnung „Ran 3“, rechts im 1. Obergeschoss des Hauses Ran in Wittdün auf Amrum ist eine 2-Zimmer-Ferienwohnung (ca. 49 qm Grundfläche) mit Schlafmöglichkeiten für 1 bis 2 Personen.
Die Wohnung verfügt über 1 Wohnraum mit Meerblick, 1 Zweisitzer-Couch, 1 Sessel, WLAN, Sat-TV und offener Küche, 1 Schlafzimmer, 1 Badezimmer mit Dusche und WC, Waschmaschine und Trockner zur Gemeinschaftsnutzung, Südbalkon mit Balkonmöbeln (April - Oktober), PKW-Stellplatz.
1 Schlafzimmer mit 1 Doppelbetten (180 x 200). Kleiderschrank und 2 Nachttische.
Wohnbereich mit offener Küche, 1 Sessel, 2-Sitzer-Couch, Esstisch mit Stühlen, Sat-TV, Telefon (kostenlos im Festnetz der Telekom), WLAN. Meerblick.
Die Küche ist offen zum Wohnbereich. Die Küche verfügt über Spüle, Geschirrspüler, Induktionsherd mit 4 Kochstellen, Kaffeemaschine, Wasserkocher, Mikrowelle, Backofen, Kühlschrank mit Gefrierfach Toaster sowie Geschirr und Hausrat für den täglichen Bedarf.
Badezimmer mit Dusche (bodengleich), Waschbecken, WC, Außenfenster und Fön.
Die Lage mit dem direkten Blick aufs Meer ist unschlagbar!